New Homes for Sale
Articles
Professionals
Log in
Sign up
Photos 1
Videos 0
Map
Interactive floor plan 0
Virtual 0
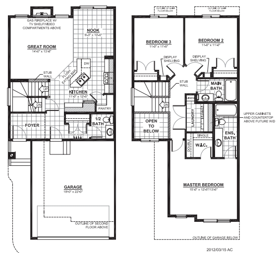
Quest Plan
By
Daytona Homes
|
Crystal Landing by Daytona Homes Master Builder
Community
Available homes
Get updates
Save
Request info
Request info
Community
Available homes
Request info
Get updates
Save
Request info
Crystal Landing by Daytona Hom...
Get updates
Request info
Sold
Sold
3
From 1,560
Quest Plan details
Address:
Grande Prairie, AB T8X 1N4
Plan type:
Detached Two+ Story
Beds:
3
SqFt:
From 1,560
Ownership:
Freehold
Interior size:
From 1,560 SqFt
Lot pricing included:
Yes
Quest Plan is now sold.