
































































Get additional information including price lists and floor plans.
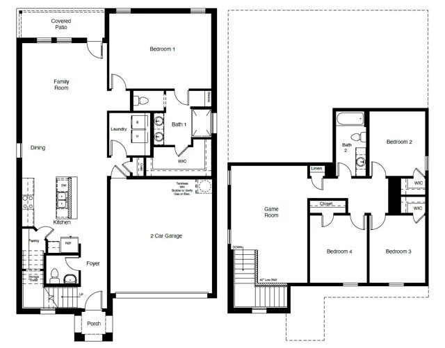
The Macon is a 2-story, approx 2,237 square foot, 4-bedroom, 2.5 bathroom, 2-car garage layout that provides the perfect area. A covered front porch guides you into a foyer entry with attached powder room. The foyer opens into a large open concept living, dining, and kitchen space with lots of cabinet storage and countertop space. Kitchen features also include granite countertops, kitchen island, stainless steel appliances with electric cooking range, ceramic tile backsplash, and spacious corner pantry with storage under the stairs. The spacious private main bedroom is located off the living room and features an attractive ensuite bathroom with luxury walk-in shower, and walk-in closet. Enjoy a covered backyard patio located off the living room. The second story opens into a versatile game room with plenty of natural light, a full bath, and all three secondary ...
Stay informed with Livabl updates on new community details and available inventory.