New Homes for Sale
Articles
Professionals
Log in
Sign up
Photos 1
Videos 0
Map
Interactive floor plan 0
Virtual 0
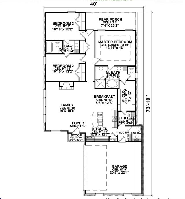
Isadore Plan
By
D.R. Horton
|
River Landing
Community
Available homes
Get updates
Save
Request info
Request info
Community
Available homes
Request info
Get updates
Save
Request info
River Landing
Get updates
Request info
Sold
Sold
3
2
1
From 1,765
Isadore Plan details
Address:
Gonzales, LA 70737
Plan type:
Detached Single Story
Beds:
3
Full baths:
2
Half baths:
1
SqFt:
From 1,765
Ownership:
Condominium
Interior size:
From 1,765 SqFt
Lot pricing included:
Yes
Isadore Plan is now sold.