










































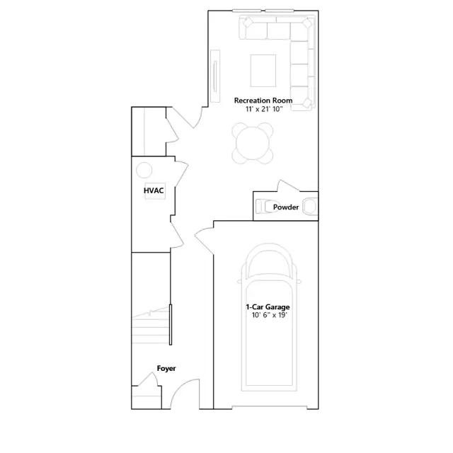
This brand-new townhome offers three levels of versatile living and entertainment space. Upon entry is a sprawling recreation room, while upstairs is the open-concept main level of the home. It includes a Great Room made for gatherings, a modern kitchen and a breakfast room for everyday meals, along with a sunlit morning room connected to a deck to round out the space. On the top floor are two secondary bedrooms and a lavish owners suite.
Stay informed with Livabl updates on new community details and available inventory.