
















































Get additional information including price lists and floor plans.
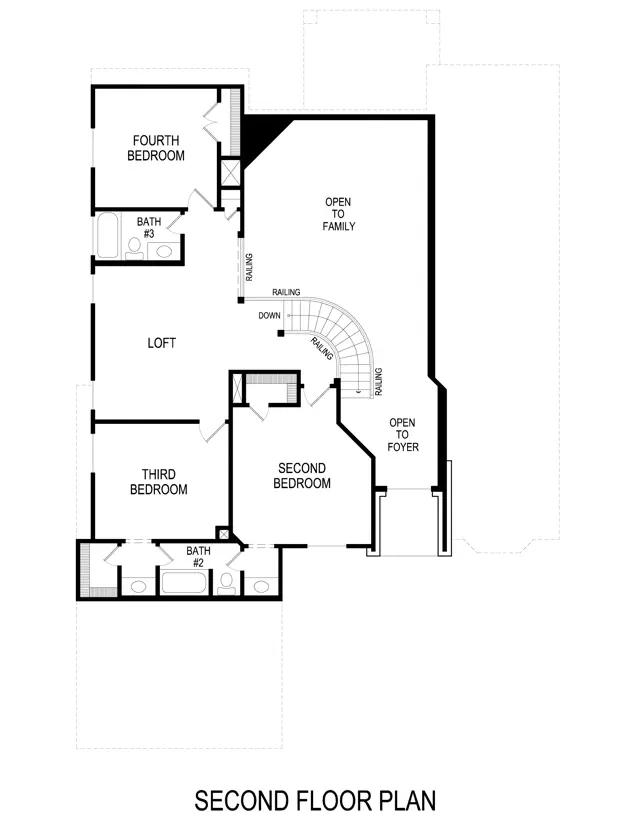
This 4 bedroom 3 1/2 bathroom plan offers a spacious utility room, media room, study and powder room, as well as a dining area. The large gourmet kitchen is equipped with the latest desired features including a butlers pantry. Additional features include extensive trim work, custom architectural detail throughout, tile floors in all wet areas, security system and so much more! Dont forget, with every First Texas, Gallery Custom or Harwood Home you will have the flexibility to customize our plans to fit your family perfectly. ***Some features shown on layout may be optional. Consult with the Sales Counselor for community plan specific features.***
Stay informed with Livabl updates on new community details and available inventory.