




































Get additional information including price lists and floor plans.
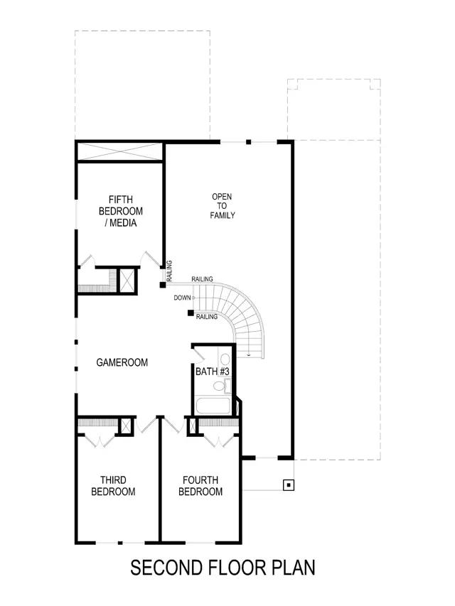
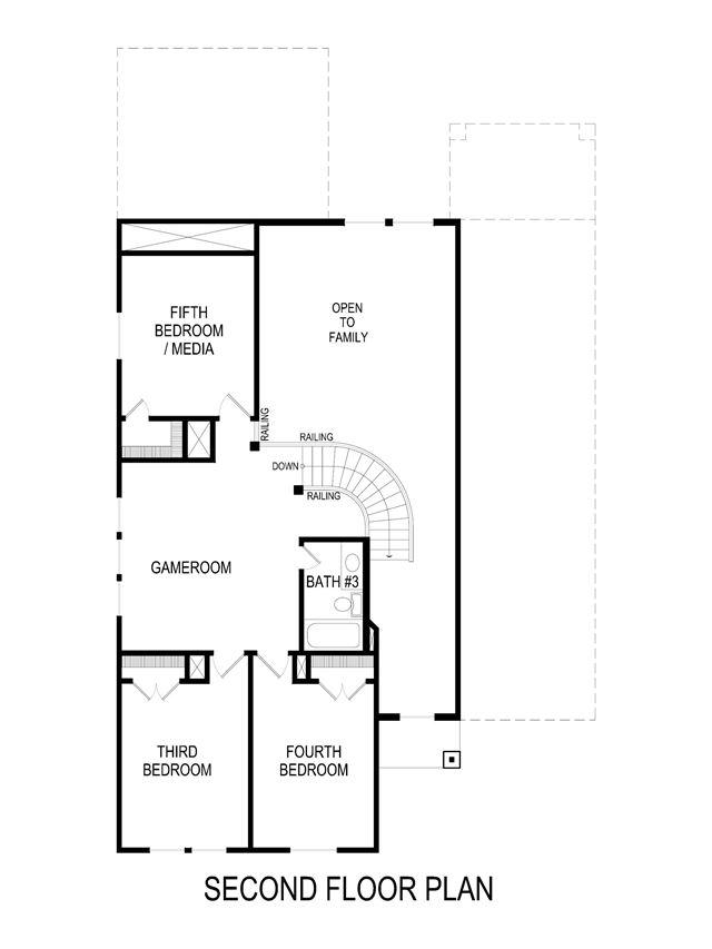
This 5 bedroom 3 bathroom plan is designed with a flex room, dining room, curved stairs, covered patio, butler's pantry, sizeable primary bedroom with dual vanities in the primary bath, spacious gourmet kitchen as well as a game and media room option upstairs. Additional features include extensive trim work, custom architectural detail throughout, tile floors in all wet areas, security system and so much more! Dont forget, with every First Texas, Gallery Custom or Harwood Home you will have the flexibility to customize our plans to fit your family perfectly. ***Some features shown on layout may be optional. Consult with the Sales Counselor for community plan specific features.***
Stay informed with Livabl updates on new community details and available inventory.