






















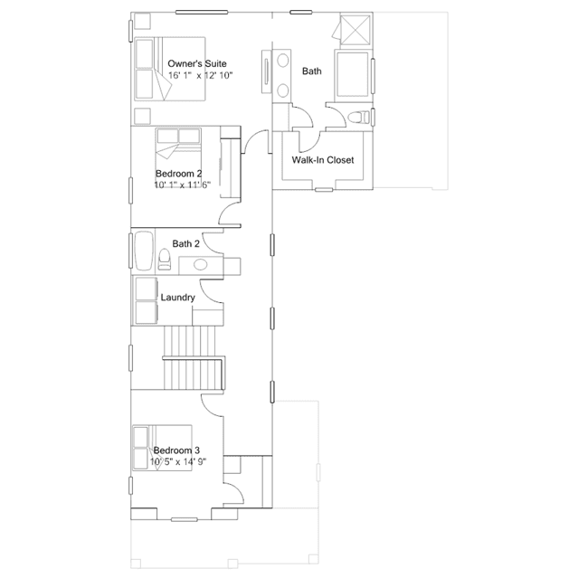
The first level of this two-story home is host to a generous open floorplan where the family room, dining room and kitchen share a footprint. Sliding glass doors lead to the outdoor space, while a secondary bedroom off the entry is ideal for overnight guests or a home office. Three more bedrooms, including the luxe owners suite, occupy the second level.