




































































Get additional information including price lists and floor plans.
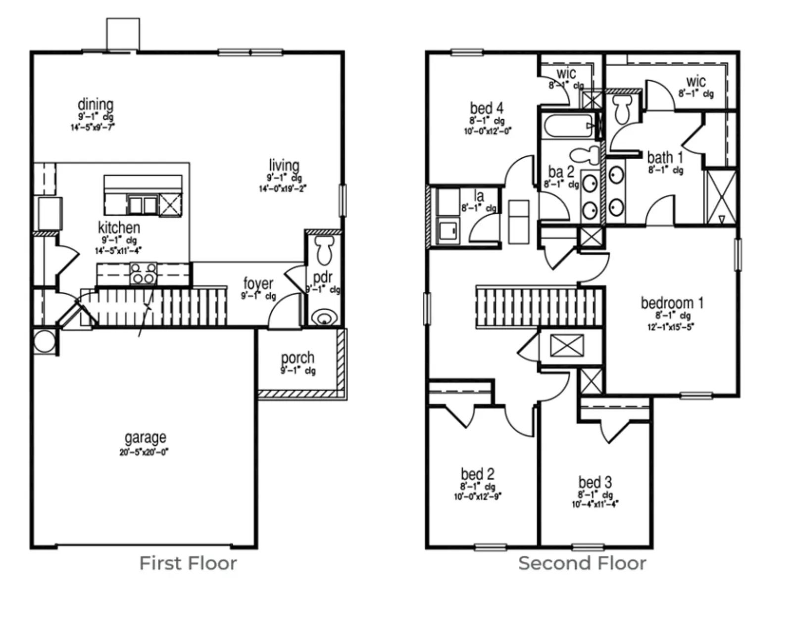
Welcome to the beautifully designed two-story new construction Aisle floorplan in Sease's Pond. Featuring a striking Hardie plank and brick exterior (per elevation), this home offers exceptional curb appeal and long-lasting durability in a thoughtfully planned layout. Step inside to a welcoming foyer that leads into a spacious open-concept living area, perfect for entertaining and daily living. The heart of the home is the stylish gourmet kitchen, showcasing quartz countertops, tile backsplash, and shaker-style cabinetry that creates a clean, contemporary feel. The kitchen flows seamlessly into the dining and living areas, finished with durable RevWood flooring. A convenient powder room and access to the attached two-car garage complete the main level. Upstairs, the private primary suite offers a comfortable retreat with a spacious bedroom, walk-in closet, ...
Stay informed with Livabl updates on new community details and available inventory.