












































































Get additional information including price lists and floor plans.
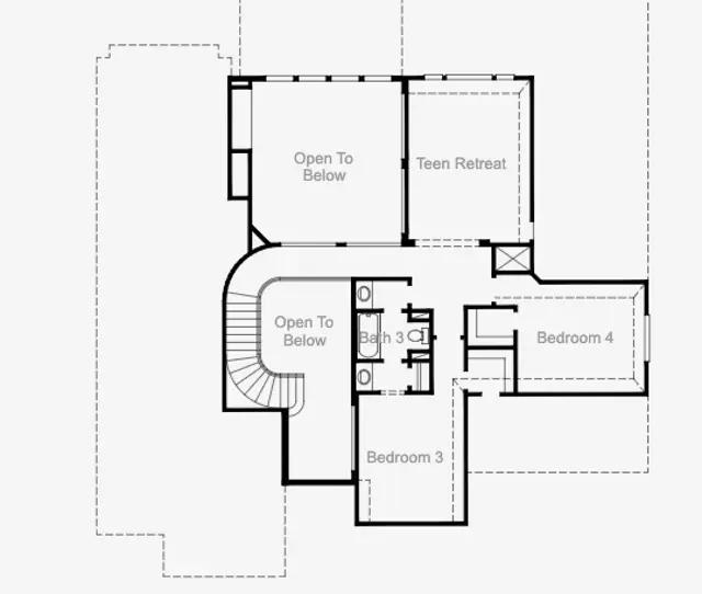
The Weston floor plan is a refined two-story design offering a spacious layout with four bedrooms and three and a half bathrooms. Thoughtfully crafted, the home includes an inviting three-car garage and delivers both functionality and elegance. The first floor seamlessly integrates a luxurious master suite with an en-suite bathroom and generous closet space, as well as a versatile kitchen designed to accommodate cooking and entertaining needs. A grand family room opens up to a casual dining area, creating a central space for gathering. Upstairs, you'll find additional bedrooms, perfectly designed to provide privacy, alongside a multi-use teen retreat that can function as a game room, study area, or entertainment hub. The Weston floor plan emphasizes architectural sophistication with an open-to-below feature that connects both floors, enhancing the feeling of ...
Stay informed with Livabl updates on new community details and available inventory.