hero-image-0

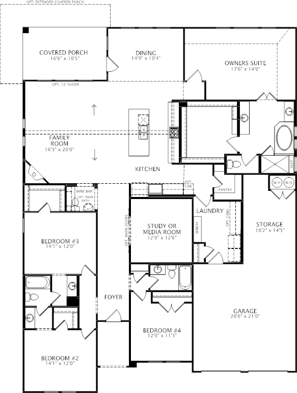
PRESLEY III Plan

The Oaks at San Gabriel
Sold
Virtual Tours
Sold
4
3
From 2,941
PRESLEY III Plan details
PRESLEY III Plan is now sold.
Check out available nearby plans below.