





















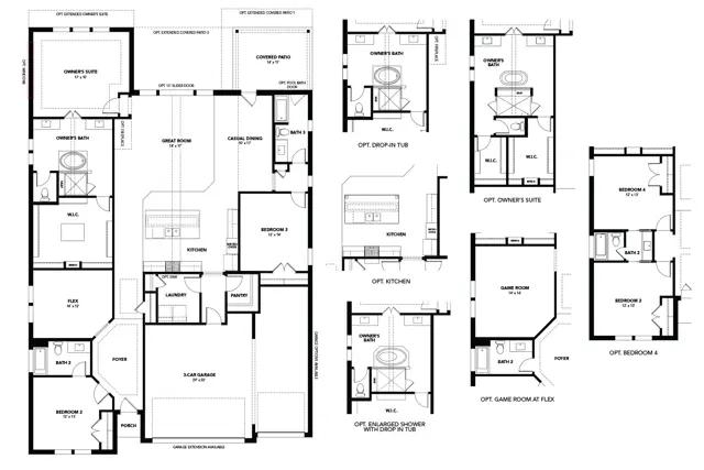
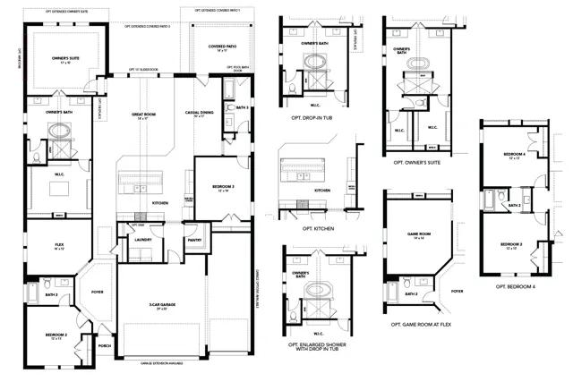
The Vanderbilt brings a sense of relaxed luxury to every corner of its well-planned design. This home blends warm, welcoming spaces with refined architectural details to create a layout that feels both expansive and comfortable. Vaulted ceilings in the main living areas add a dramatic sense of volume, elevating the feel of the home while still keeping the atmosphere cozy and inviting. The kitchen takes center stage with its unique layout, opening effortlessly to the great room for easy connection. Whether you're preparing family meals or entertaining friends, the flow between spaces supports everything from casual mornings to festive evenings. Ample cabinetry and thoughtful counter space make it as functional as it is beautiful. The owners suite is a peaceful escape tucked away for privacy, featuring a spa-like bath with dual vanities, a soaking tub, and upsc...
Stay informed with Livabl updates on new community details and available inventory.