hero-image-0
hero-image-1
hero-image-2

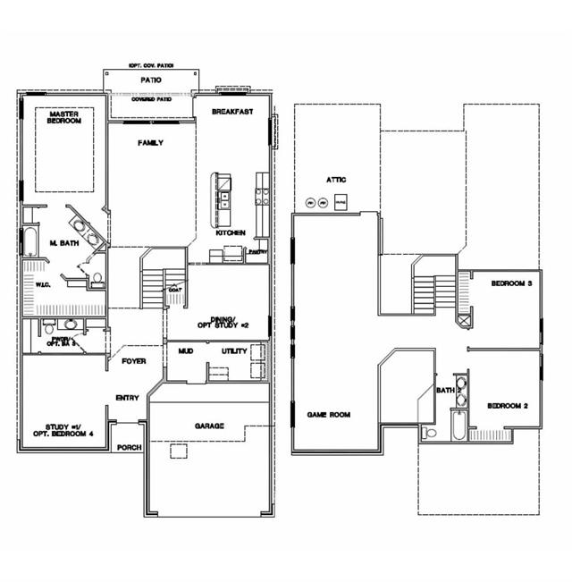
The Cumberland Plan

Katy Cove Estates
Sold
Sold
3
2
1
From 2,945
unit-banner-imageunit-banner-imageunit-banner-image
The Cumberland Plan details
The Cumberland Plan is now sold.
Check out available nearby plans below.