hero-image-0
hero-image-1
Cimarron Hills
Sold
Sold
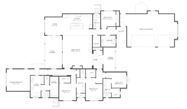
5
4
From 3,040
Basil Plan details
Basil Plan is now sold.
Check out available nearby plans below.