






















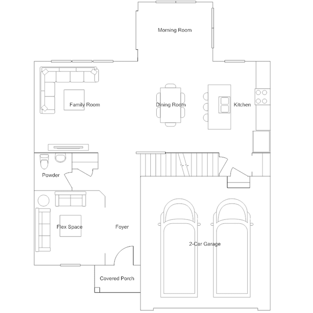
The first level of this two-story home is host to communal spaces, including a versatile living room off the foyer and an open floorplan shared among the family room, dining room and kitchen. A loft and three bedrooms can be found upstairs, two of which feature walk-in closets.