










































































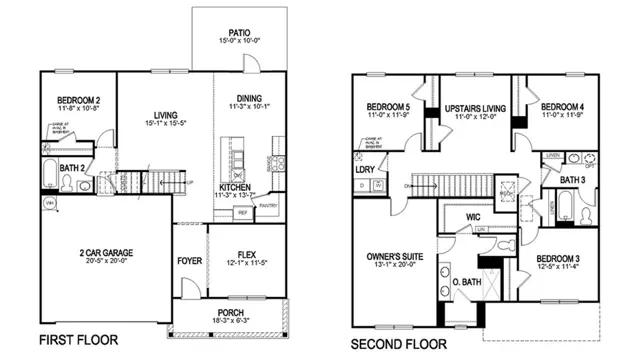
The Hayden is a spacious two-story floor plan encompassing 5 bedrooms and 3 bathrooms, spanning across 2,511 square feet. On the main level, you will find a versatile flex room adjacent to the foyer, perfect for a formal dining room or a home office. The gourmet kitchen boasts an oversized island, providing additional seating, along with granite countertops, stainless steel appliances, and a generous pantry. This kitchen seamlessly flows into the dining area and a spacious living room, creating an ideal space for entertaining. Completing the main level is a bedroom accompanied by a full bathroom. Moving to the second level, you will discover the Primary Bedroom, which offers a luxurious bath featuring a shower, a private bathroom, double vanities with marble counters, and a generously sized walk-in closet. Additionally, there are 3 more bedrooms, a full bathroom,...
Stay informed with Livabl updates on new community details and available inventory.