





Get additional information including price lists and floor plans.
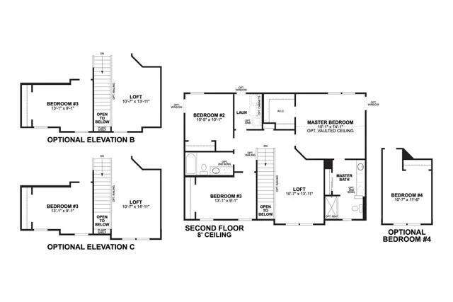
The Dearborn is a traditional 2-story home with 3 to 4 bedrooms and 2.5 bathrooms. This home includes a covered front porch and a 2-car garage. Choose the craftsman elevation with a full front porch, decorative tapered columns, and stone and shake shingle accents, or the farmhouse elevation with a full front porch, and board and batten siding.
Stay informed with Livabl updates on new community details and available inventory.