






























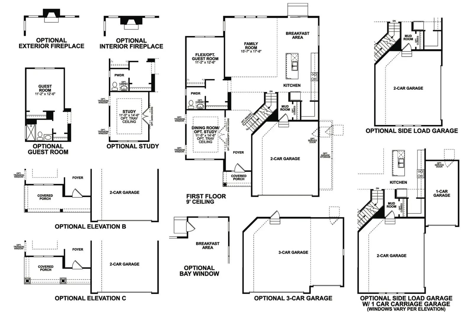
The Fordham II is one of our newly designed floorplans in our Signature Series of homes. This 2-story home offers 4 to 5 bedrooms, 2-and-a-half to 4-full baths, a second-floor laundry room and ranges from 3,008 to 3,407 square feet. The Fordham offers a wide range of options to select from to personalize your new home. Choose from three distinct exteriors: The traditional, farmhouse, and craftsman elevations all allow you to express your personal style. As you enter past the covered porch, and step into the home, you are greeted by a spacious foyer that opens to the dining room. Choose the optional transom windows for more natural light, or convert the space to the optional study and choose from double doors or barn doors. Select the tray ceiling to add volume to the space.
Stay informed with Livabl updates on new community details and available inventory.