








































Get additional information including price lists and floor plans.
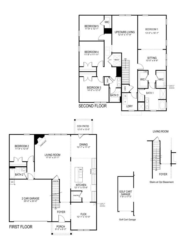
The 3,209 sq.ft. Halton is a two-story home offered in Falcon Landing, a lakeside community in Gainesville, GA and is available in 2 unique elevations: the MR and PR. Boasting 5 bedrooms and 3 bathrooms, 2-car garage and bonus golf cart garage, theres no question why this is one of our best-selling plans. A spacious foyer leads you into the home through a hallway leading into the living room and opens to the flex room. Through the flex room youll enter a butlers pantry that acts as a pass-through especially beneficial if the flex space is used as a dining room and provides access to the roomy walk-in pantry. The large kitchen feels boundless with seamless flow into the attached dining area and adjacent living room. A stainless-steel appliance suite, oversized island, and bountiful counterspace make this kitchen a chefs dream. A bedroom and full bathroom round ...
Stay informed with Livabl updates on new community details and available inventory.