



















































































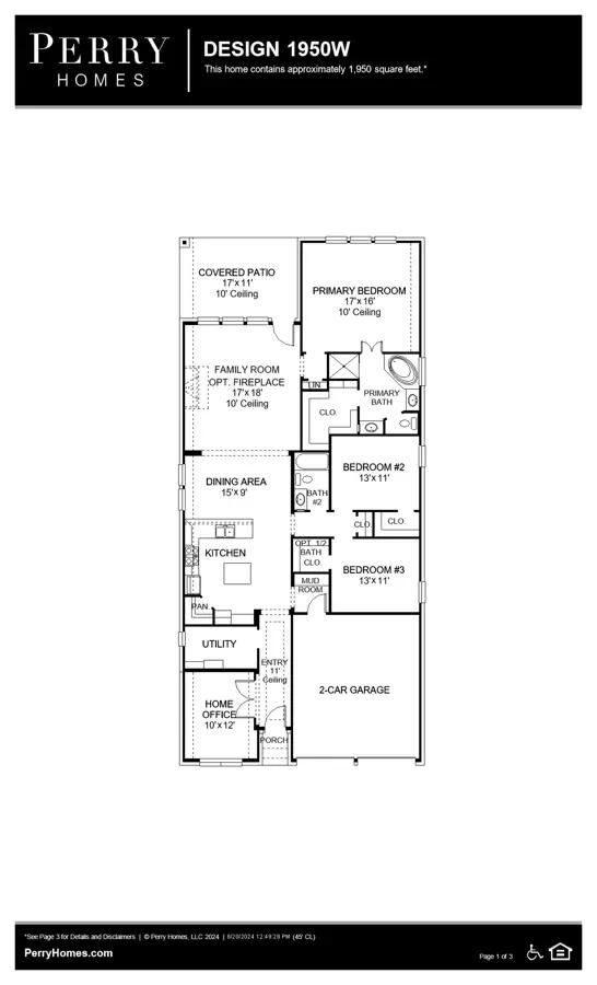
Home office with French doors set at entry with 11-foot ceiling. Open kitchen offers center island and corner walk-in pantry, and a 5-burner gas cooktop. Dining area is adjacent to open family room with wall of windows. Spacious primary suite. Dual vanities, garden tub, separate glass-enclosed shower and large walk-in closet in primary bath. Secondary bedrooms include walk-in closets. Covered backyard patio. Mud room off two-car garage. Representative Images. Features and specifications may vary by community.
Stay informed with Livabl updates on new community details and available inventory.