hero-image-0
hero-image-1

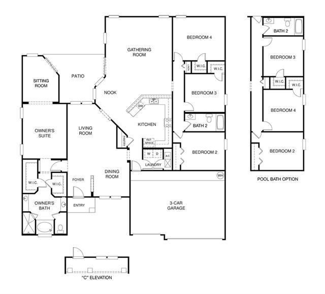
609 Fort William Drive

Aberdeen Wellington Park
Sold
Sold
4
2
2,606
609 Fort William Drive details
unit-banner-image
unit-banner-image
unit-banner-image
609 Fort William Drive is now sold.
Check out available nearby homes below.