New Homes for Sale
Articles
Professionals
Log in
Sign up
Photos 8
Videos 0
Map
Interactive floor plan 0
Virtual 0
25 Spoon Square
By
D.R. Horton
   |  Â
Blue Ridge Shadows Townhomes
Community
Get updates
Save
Request info
Request info
Community
Request info
Get updates
Save
Request info
Blue Ridge Shadows Townhomes
Get updates
Request info
Sold
Sold
4
3
1
2,097
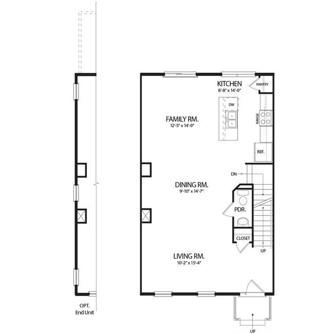
25 Spoon Square details
Address:
Â
Front Royal, VA 22630
Plan type:
Â
Two+ Story
Beds:
Â
4
Full baths:
Â
3
Half baths:
Â
1
SqFt:
Â
2,097
Ownership:
Â
Fee simple
Interior size:
Â
2,097 SqFt
Lot pricing included:
Â
Yes
25 Spoon Square is now sold.