New Homes for Sale
Articles
Professionals
Log in
Sign up
Photos 6
Videos 0
Map
Interactive floor plan 0
Virtual 0
104 Niblick Square
By
D.R. Horton
   |  Â
Blue Ridge Shadows Townhomes
Community
Get updates
Save
Request info
Request info
Community
Request info
Get updates
Save
Request info
Blue Ridge Shadows Townhomes
Get updates
Request info
Sold
Sold
3
2
1
1,948
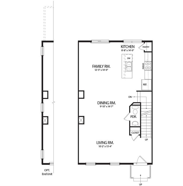
104 Niblick Square details
Address:
Â
Front Royal, VA 22630
Plan type:
Â
Two+ Story
Beds:
Â
3
Full baths:
Â
2
Half baths:
Â
1
SqFt:
Â
1,948
Ownership:
Â
Fee simple
Interior size:
Â
1,948 SqFt
Lot pricing included:
Â
Yes
104 Niblick Square is now sold.