hero-image-0
hero-image-1
hero-image-2
hero-image-3
hero-image-4
hero-image-5

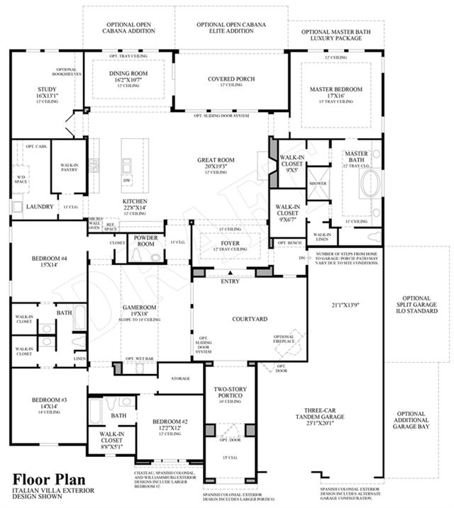
Windcrest Plan

Edgestone at Legacy
Sold
Sold
4
3
1
From 3,685
Windcrest Plan details
Windcrest Plan is now sold.
Check out available nearby plans below.