hero-image-0
hero-image-1

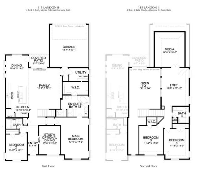
Plan #115 Landon

Edgestone at Legacy
Sold
Sold
4
3
From 2,919
Plan #115 Landon details
Plan #115 Landon is now sold.
Check out available nearby plans below.