






















































































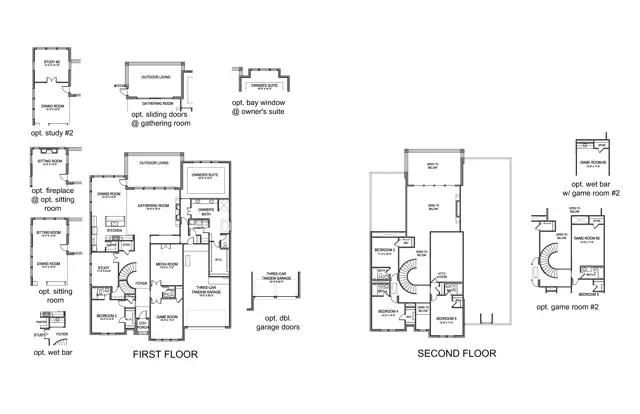
With a lot of living space, the 7431 floor plan has ample room for five bedrooms and five and a half baths. Featuring a dramatic entry way and soaring ceilings, this floor plan fits all your needs. Off the foyer secondary bedroom and full bath, game room, media room, and study. The expansive gathering room and open kitchen are great for family time. Keep the good times going by extending the casual dining area to include a sitting room, conveniently located next to the outdoor living area for seamlessly entertaining. Your owners suite has everything you need to set the stage for a peaceful retreat. In the owners bath you find a tub for ultimate relaxation as well as a separate shower encased in glass. Dual sink vanities provide sinks for two while the commode is tucked away behind a privacy door. From the bathroom you go into an expansive walk-in closet. The laun...
Stay informed with Livabl updates on new community details and available inventory.