hero-image-0
hero-image-1
hero-image-2
hero-image-3
hero-image-4
hero-image-5

2388 S Bush Ave

By

D.R. Horton

   |   

Olive Lane

Olive Lane
For sale
For sale
$409,490
2
3
2
1
1,590
2388 S Bush Ave details

Contact sales center

Get additional information including price lists and floor plans.

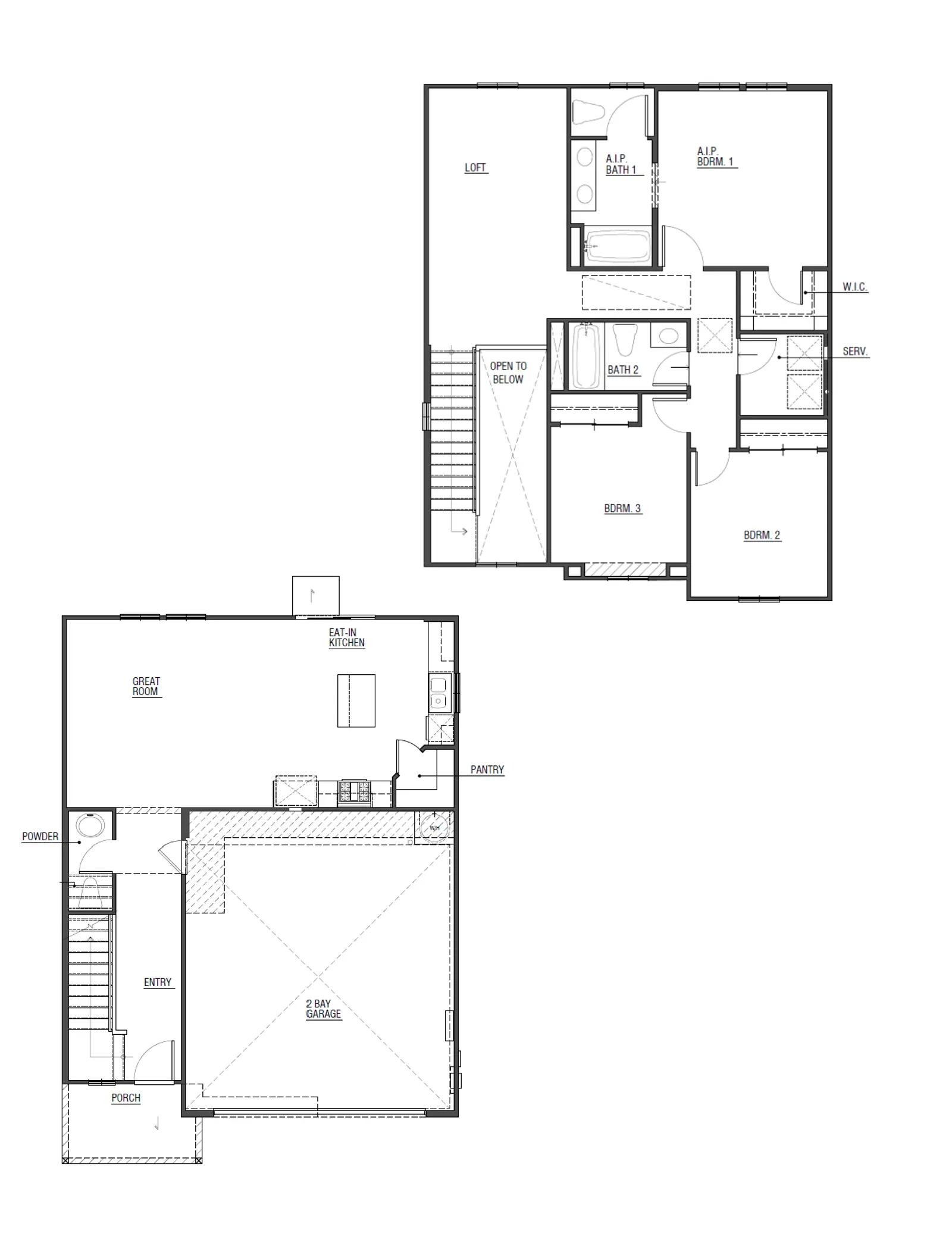
Floor plan

Oxford

Olive Lane

The Oxford is a versatile two-story home offering approximately 1,590 square feet of open-concept living space. The first floor features a spacious kitchen and great room designed for effortless entertaining. The kitchen includes quartz countertops, shaker-style cabinetry, a large center island, walk-in pantry, and Whirlpool stainless-steel appliances. Upstairs, a flexible loft provides space for a home office or media area, while the primary suite features dual vanity sinks and a walk-in closet. Two additional bedrooms, a full bathroom, and a laundry room complete the second level.

Interested? Receive updates

Stay informed with Livabl updates on new community details and available inventory.