







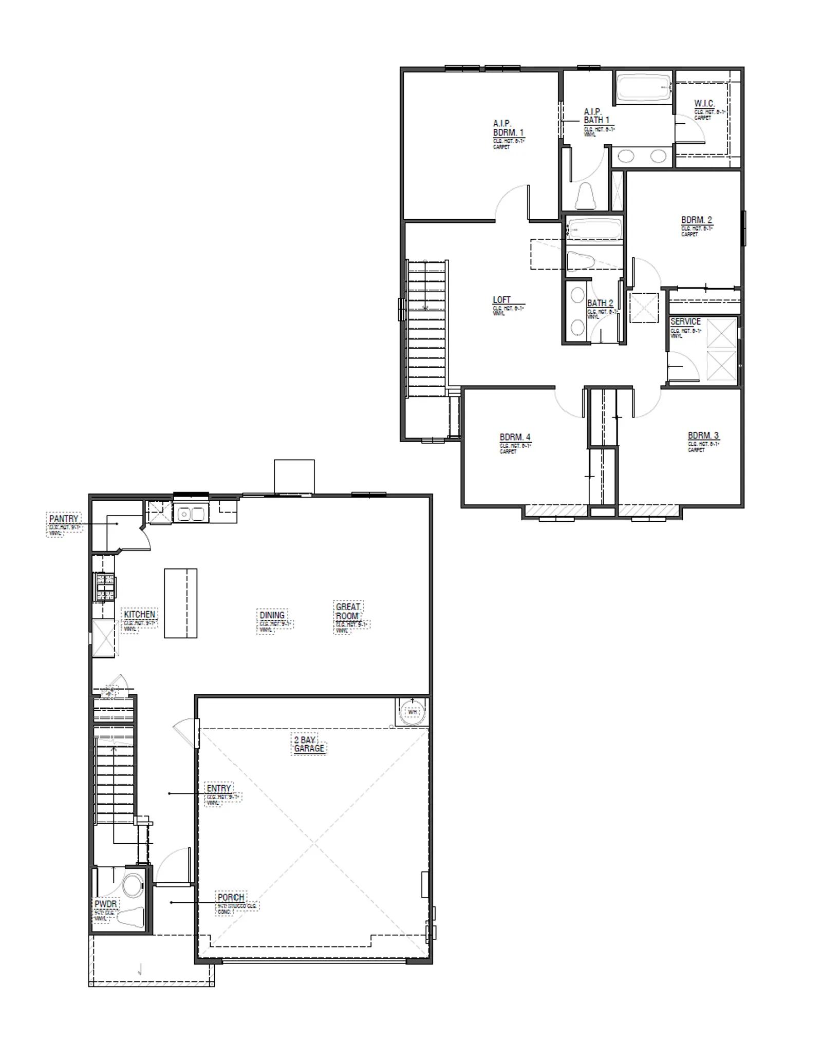
The Windsor is a well-appointed two-story, four-bedroom home offering two full bathrooms, a powder room, and approximately 1,775 square feet of living space. The open-concept first floor includes a connected kitchen, dining, and great roomideal for entertaining. The kitchen boasts quartz countertops, shaker-style cabinetry, a walk-in pantry, center island with snack bar, and Whirlpool stainless-steel appliances. Upstairs, an open loft provides flexible living space, while the primary suite features dual vanity sinks and a spacious walk-in closet. Three additional bedrooms, a full bathroom, and an indoor laundry room complete this thoughtfully designed home.
Stay informed with Livabl updates on new community details and available inventory.