




































Get additional information including price lists and floor plans.
Images coming soon
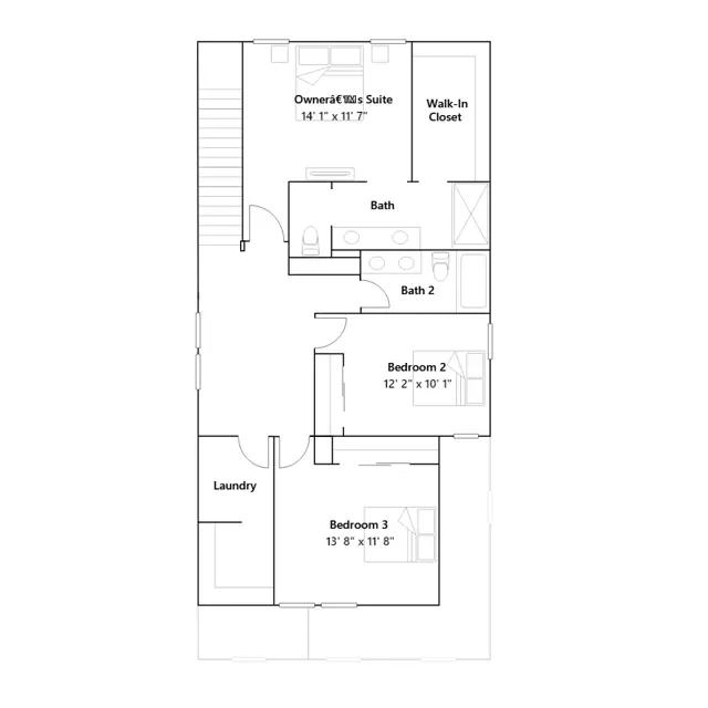
This new two-story home is spacious with a design made for modern lifestyles. An inviting open-concept floorplan greets visitors off the entry, great for everyday entertaining and multitasking. Three bedrooms are located upstairs, including the lavish owners suite at the back of the home, complete with a spa-inspired bathroom and roomy walk-in closet.
Stay informed with Livabl updates on new community details and available inventory.