


































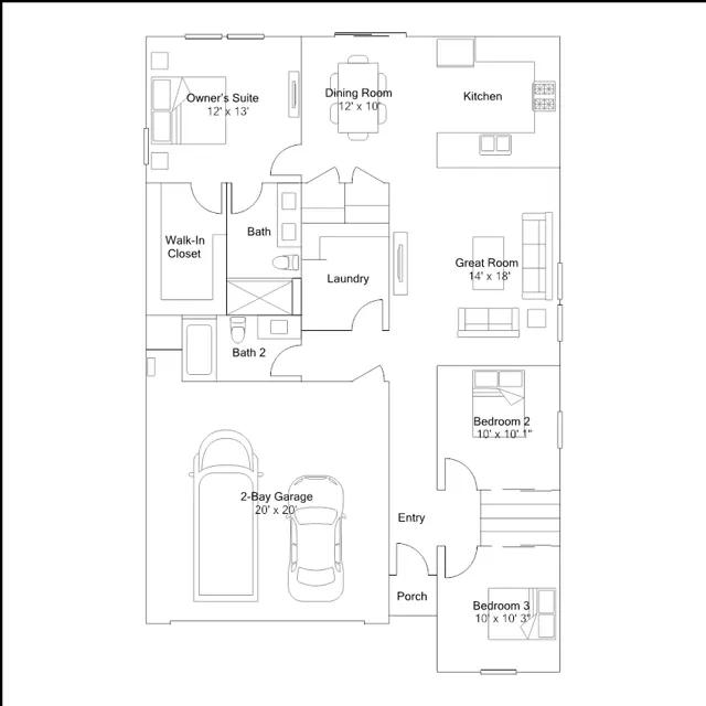
This single-level home embraces an open layout shared between the kitchen, dining room and Great Room, making it an ideal space for entertaining. There are three bedrooms within the home, including the private owner's suite, complete with an en-suite bathroom and walk-in closet.