







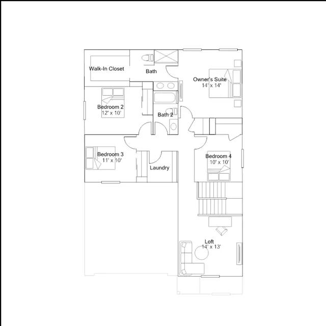
This new two-story home offers a convenient flex space and comfortable bedroom suite on the first floor, adjacent to an inviting open plan that blends the kitchen, living and dining areas. On the second level is a versatile loft, located steps from three additional secondary bedrooms and a luxe owners suite with a full bathroom and walk-in closet.
Stay informed with Livabl updates on new community details and available inventory.