hero-image-0
hero-image-1
hero-image-2
hero-image-3

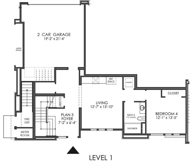
19 Plan

Russell Square at Metro Crossi...
Sold
Sold
4
3
1
From 2,460
unit-banner-imageunit-banner-imageunit-banner-image
19 Plan details
19 Plan is now sold.
Check out available communities below.