







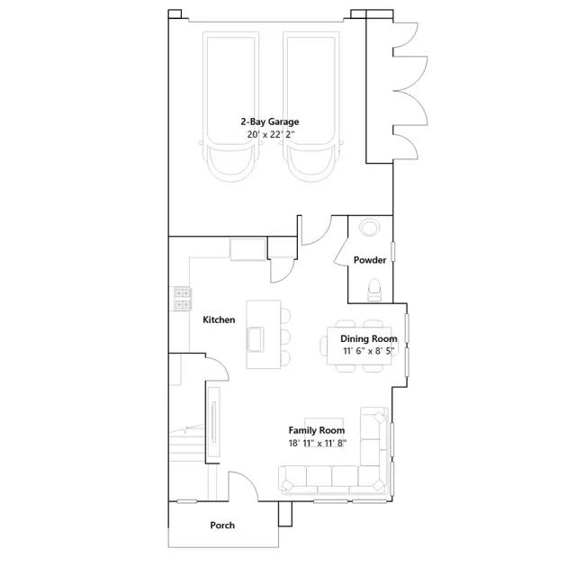
This two-story townhome has a great layout with the first level dedicated to shared moments, showcasing an open design among the family room, dining room and kitchen. The second floor hosts all bedrooms including the owner's suite with a private bathroom and walk-in closet.