hero-image-0
hero-image-1

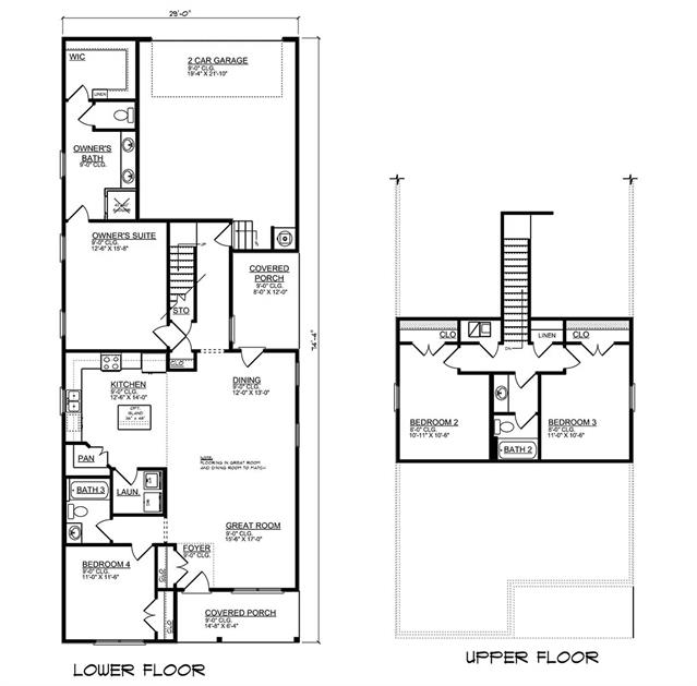
252 Cornelia Street

Hammock Bay by Express Homes
Sold
Sold
4
3
2,024
252 Cornelia Street details
unit-banner-image
unit-banner-image
unit-banner-image
252 Cornelia Street is now sold.
Check out available nearby homes below.