














































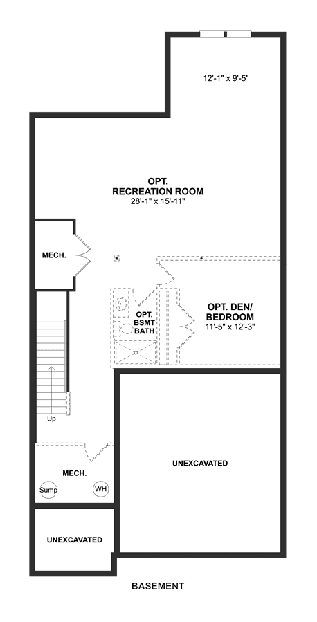
Spacious open-concept floor plan for everyday living and entertaining. Extra Suite with full bath on first floor, ideal for guests. Striking kitchen with large island and lots of storage. Great room with optional fireplace overlooking kitchen. Oversized primary suite with private bath with optional freestanding tub . Optional finished basement with a recreation room, den/bedroom and full bath.