











































































Images coming soon
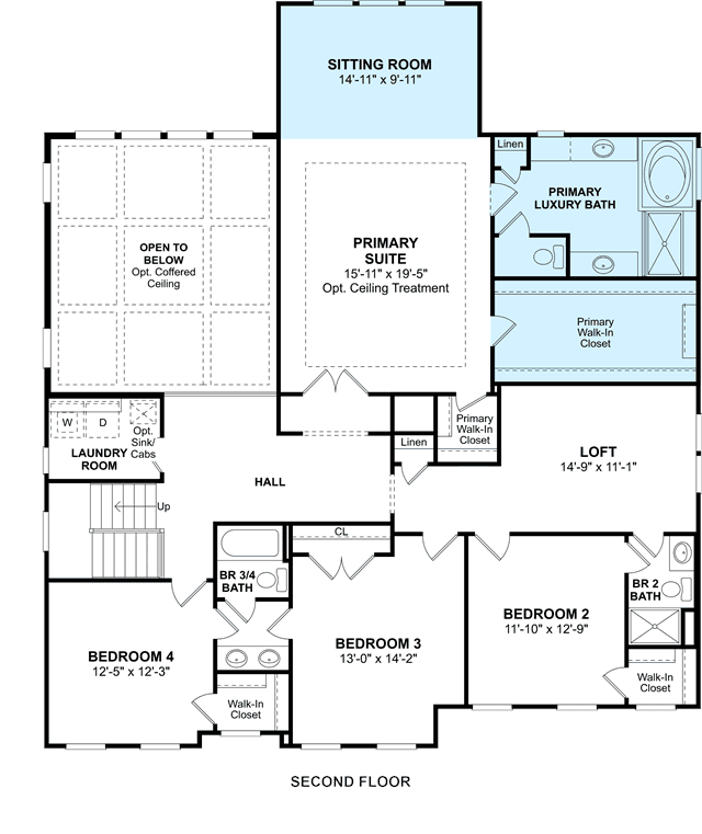
Formal living and dining room off foyer. Striking kitchen with island and breakfast bar. Spacious great room with ample windows and optional fireplace. Cozy dining area off kitchen with access to backyard. Private home office off kitchen. Luxurious owner's suite with spa bath and walk-in closet. Optional Extra Suite on first floor for overnight guests. Optional basement rec room available for additional living space.