
























































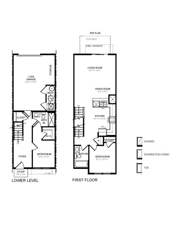
Meet D.R. Horton's newest townhome design, The Carlton! Masterful design and modern luxury are uniquely embodied in this townhome plan. This design features 1,793 sq ft of living space split between 3 levels. 4 bedrooms, 4 baths, and a 1-car garage. The Carlton offers a dynamic lower level, complete with a bedroom, walk-in closet and bathroom. Your spacious main level is complete with an eat-in kitchen that overlooks the living room. This level also has a bed and bath - perfect for your home office or for visiting guests! The upper level boasts a laundry closet, plus two bedrooms on opposite ends of the home for added privacy; the primary bedroom with walk-in closet and ensuite, as well as the secondary bed and bath.
Stay informed with Livabl updates on new community details and available inventory.