hero-image-0
hero-image-1

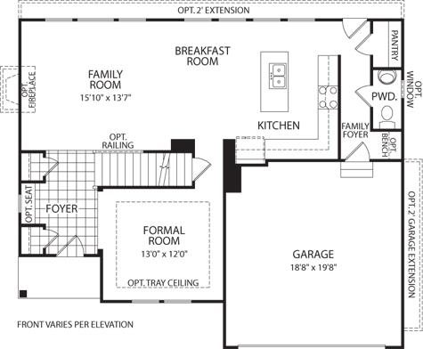
Ashton Plan

By

Drees Homes

   |   

Clover Ridge

Clover Ridge
Sold
Sold
4
2
1
From 2,230
unit-banner-imageunit-banner-imageunit-banner-image
Ashton Plan details
Ashton Plan is now sold.
Check out available nearby plans below.