

















































Get additional information including price lists and floor plans.
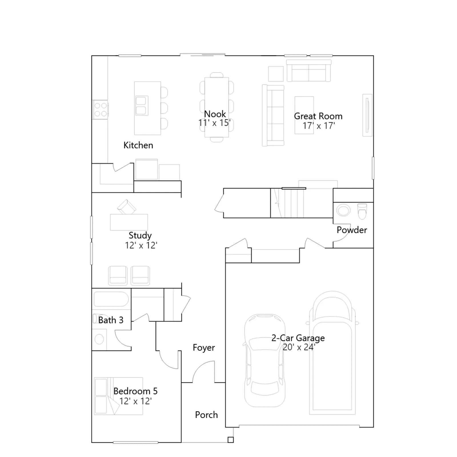
The largest floorplan in the collection, this two-story home offers convenience and comfort. A separate bedroom and a study can be found off the foyer, providing space for guests and a practical home office. The Great Room, dining room and kitchen are arranged among a spacious open floorplan. Four bedrooms and a loft are located on the second floor.
Stay informed with Livabl updates on new community details and available inventory.