
























































































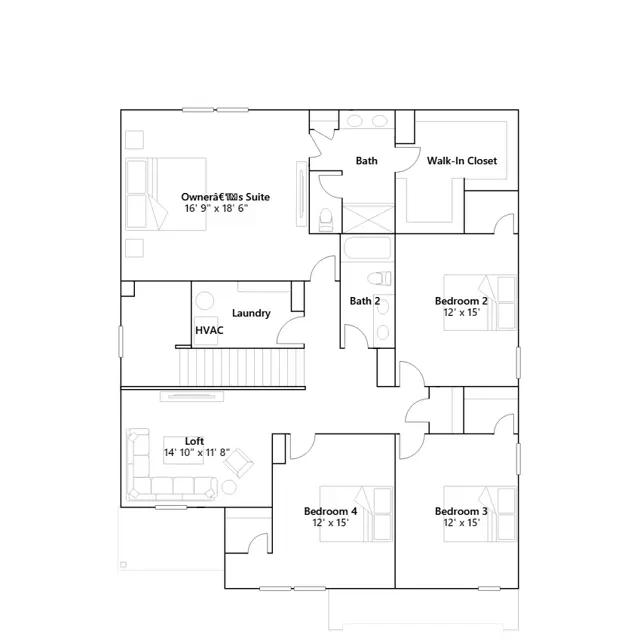
The first floor of this two-story home is host to a spacious open floorplan consisting of a Great Room, dining area and modern kitchen as well as a bedroom and study placed to the side of the home. Upstairs, there are four additional bedrooms, including the restful owners suite, and a versatile loft provides shared living space on the second floor.
Stay informed with Livabl updates on new community details and available inventory.