



































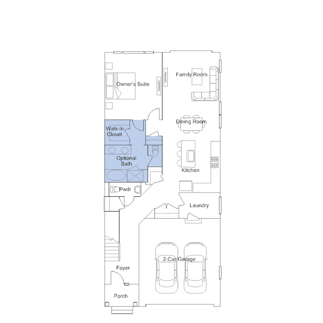
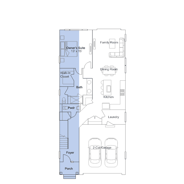
This two-story home provides the opportunity for single-level living with everything you need on the first floor, including an open kitchen, dining room and family room, along with the owners suite. Upstairs is a loft overlooking the family room and two comfortable bedrooms that could be used as an office and for guests. An optional fourth bedroom provides even more livable space on the second floor.