














































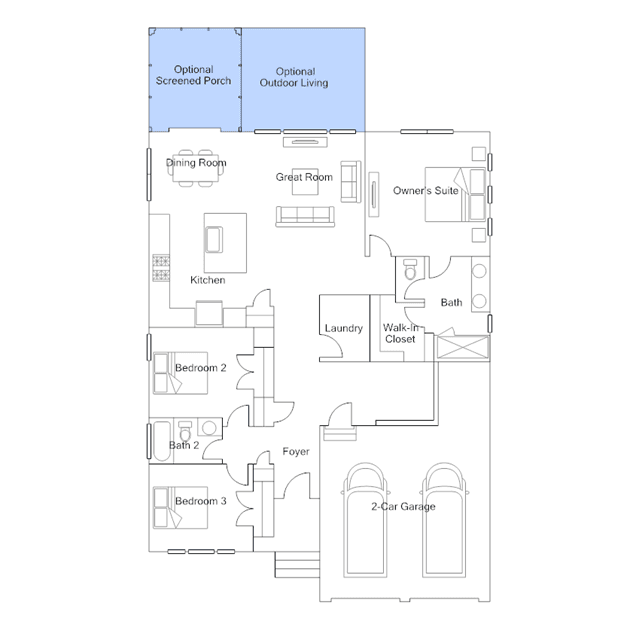
This single-story home features a contemporary open layout in the Great Room, kitchen and breakfast area with sliding glass doors that flow out to the backyard. Near the foyer are two comfortable bedrooms, while the owners suite is tucked away in the back of the home for maximum privacy. An unfinished basement can be transformed in various optional ways.