




























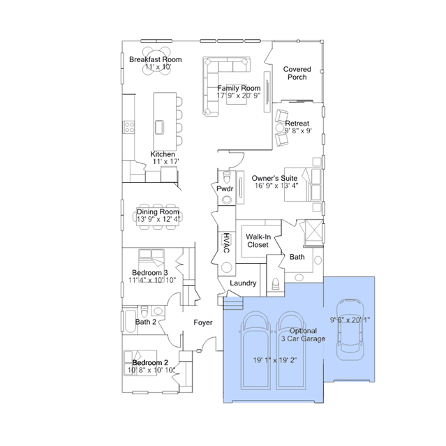
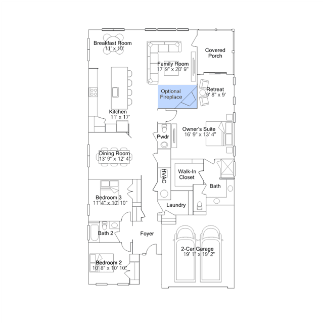
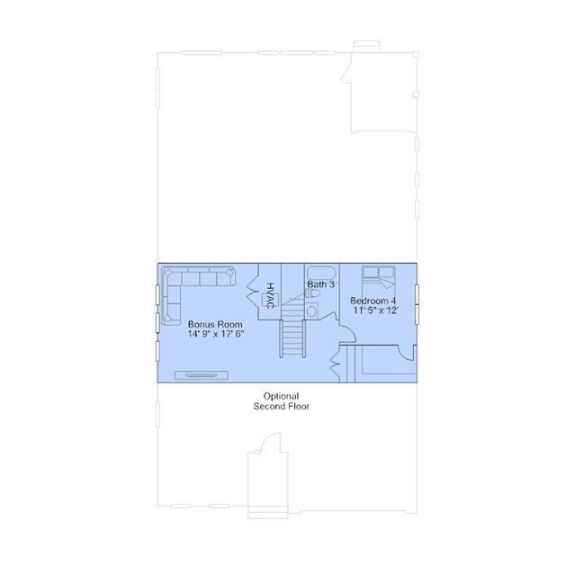
This expansive two-story home features a formal dining room followed by an open space kitchen, family room and breakfast area with quick access to the covered porch. There are four bedrooms in total, plus an upstairs bonus room with endless possibilities.