































































Get additional information including price lists and floor plans.



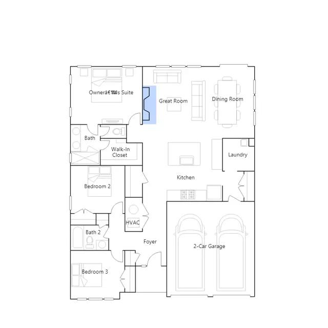
This single-story home features a contemporary open layout in the Great Room, kitchen and breakfast area with sliding glass doors that flow out to the backyard. Near the foyer are two comfortable bedrooms, while the owners suite is tucked away in the back of the home for maximum privacy.
Stay informed with Livabl updates on new community details and available inventory.