



















































































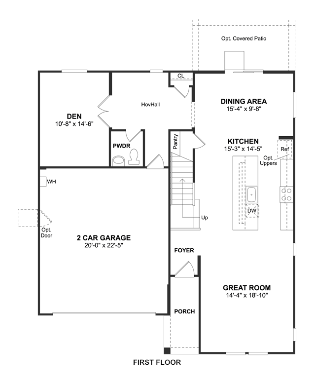
Bright, open living space, ideal for entertaining . Well-designed modern kitchen with large island and roomy pantry. Spacious HovHall with closet space keeping your home tidy. Versatile private den with available double doors. Luxury owner's suite with expansive walk-in closet. Optional private Extra Suite on first floor, perfect for guests.
Stay informed with Livabl updates on new community details and available inventory.