








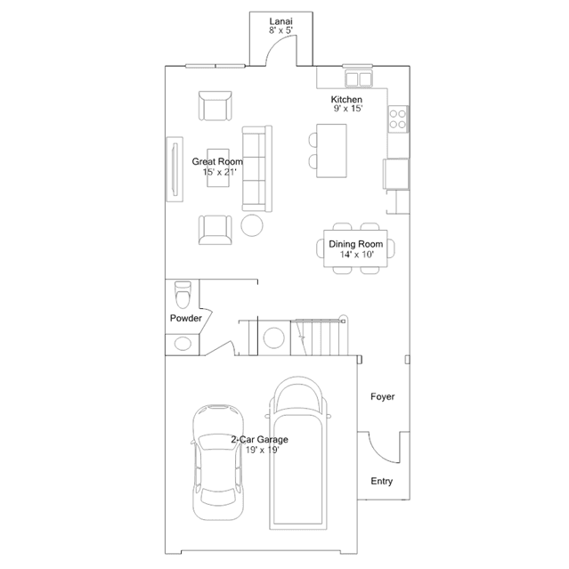
An open floorplan allows for seamless transition between the Great Room, kitchen and dining room on the first level of this two-story home, offering access to the lanai for effortless outdoor living and entertaining. All three bedrooms can be found on the second floor, including the luxurious owners suite, which is comprised of a restful bedroom, an en-suite bathroom and a walk-in closet.