The Heights
San Mateo Terrace, San Mateo
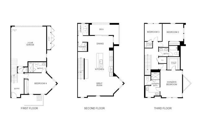
549 Prospect Street Townhouse
Cordes, San Carlos
782 Elm Street Townhomes
Howard Park, San Carlos
808 Alameda Townhomes
Beverly Terrace, San Carlos
Townhomes at 505 East Bayshore
Bair Island, Redwood City
575 Prospect Street Townhomes