hero-image-0

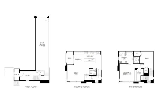
Plan 5

Laguna Vista
Sold
Sold
1
1
1
From 1,436
unit-banner-imageunit-banner-imageunit-banner-image
Plan 5 details
Plan 5 is now sold.
Check out available communities below.