hero-image-0

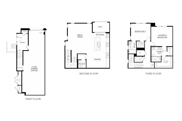
Plan 6

Laguna Vista
Sold
Sold
2
2
1
From 1,692
unit-banner-imageunit-banner-imageunit-banner-image
Plan 6 details
Plan 6 is now sold.
Check out available communities below.