hero-image-0

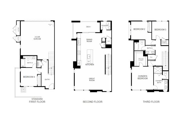
Plan 4

Laguna Vista
Sold
Sold
3
4
3
1
From 2,194
unit-banner-imageunit-banner-imageunit-banner-image
Plan 4 details
Plan 4 is now sold.
Check out available communities below.