The Heights
San Mateo Terrace, San Mateo
Townhomes at 505 East Bayshore
Bair Island, Redwood City
808 Alameda Townhomes
Beverly Terrace, San Carlos
549 Prospect Street Townhouse
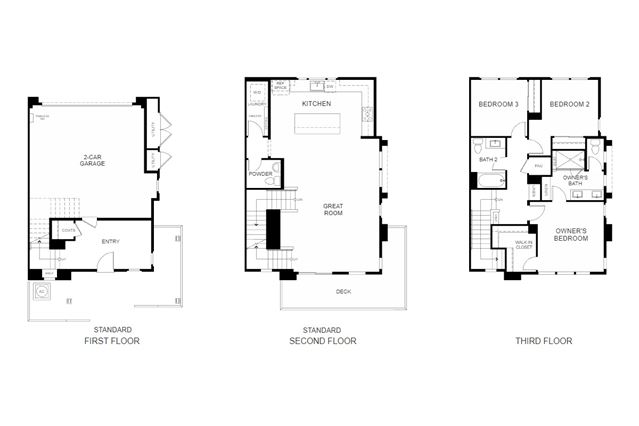
Cordes, San Carlos
575 Prospect Street Townhomes
782 Elm Street Townhomes
Howard Park, San Carlos